Accessory Dwelling Unit
Uncompromising Style in a Compact Footprint
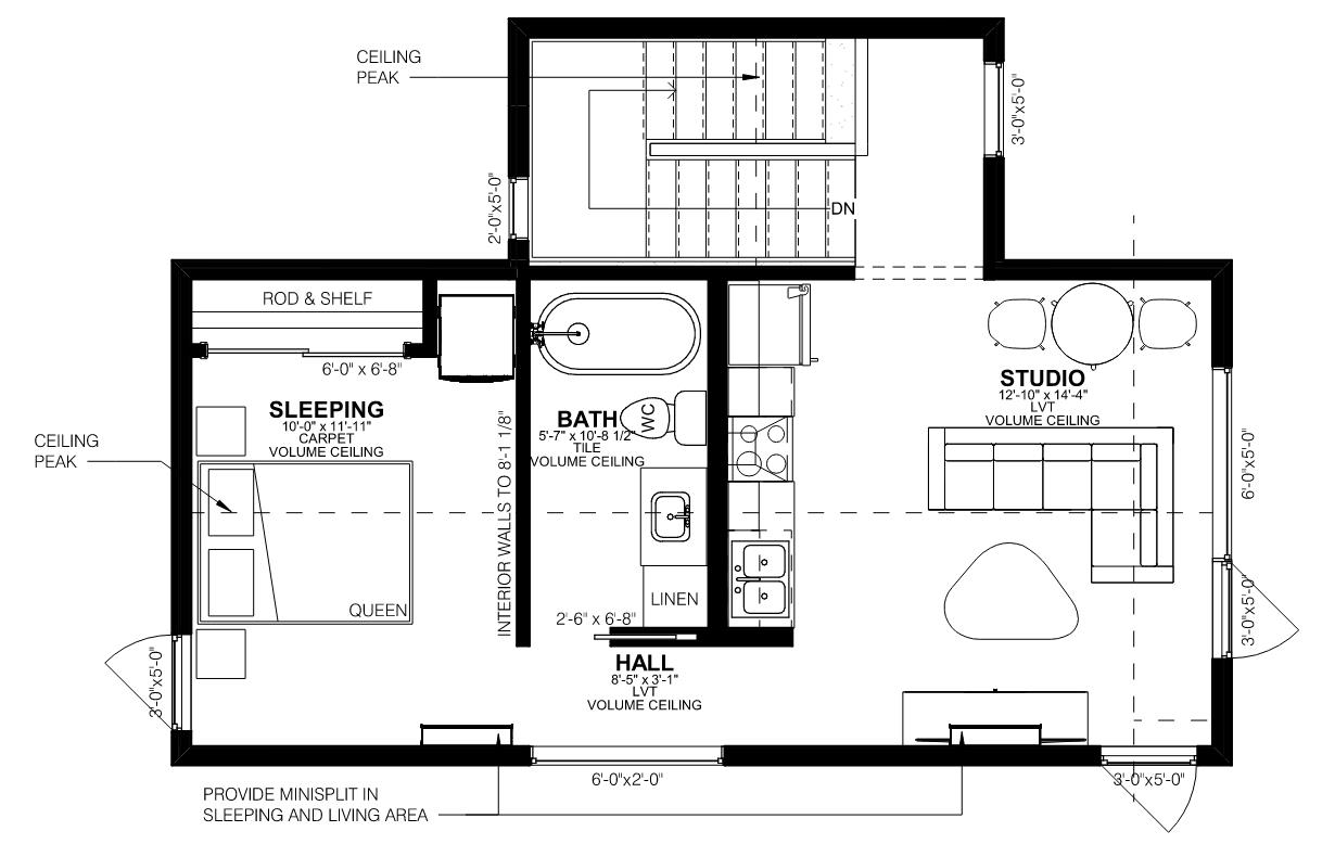
Forget everything you know about “tiny” living. This Golden ADU is a masterclass in spatial design. From the ample living and dining zones to the full-size kitchen suite, every inch is intentional. Retreat to the quiet queen-sized sleeping area or enjoy a long soak in the full tub. With a dedicated linen closet and integrated laundry, this isn’t just a guest house—it’s a home.

